| . |
| . |
| . |
| . |
| . |
| . |
| . |

| . |
| Portwenn Online A Magical Cornish Village Doc Martin is IN |
| Episode 3 |
| Episode 6 |













| . |
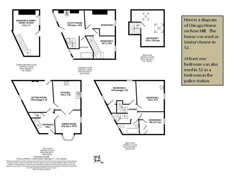
| Locations - Series 2 |
| |||||||||||||||||||||||||||||||||||||||||||||||||||||||||||||||||||||||
| ||||||||||||||||||||||||